キッチン+引戸の大型パントリーを壁際に配するダイニングキッチンスタイルです。
壁付けキッチンは壁面を有効に利用して見せる収納、吊るす収納で個性的なお洒落なキッチンが叶います。
お子様の勉強やパソコンを広げたり、書き物ができるデスクコーナーも設けました。
南入り 27坪 小さいけど十分な家 お子さまの成長に合わせ2LDKから3LDKへ
小さな家は、エネルギー消費が少なくエコ!
こんな家が街に増えれば、自然エネルギーだけで暮らすこともできそうです。 デザインは、大きな片流れタイプの屋根を持ち、空間効率を最大限追求した設計です。 広いバルコニーがアイキャッチとなり、デザインに華を添えています。
間取り図
-
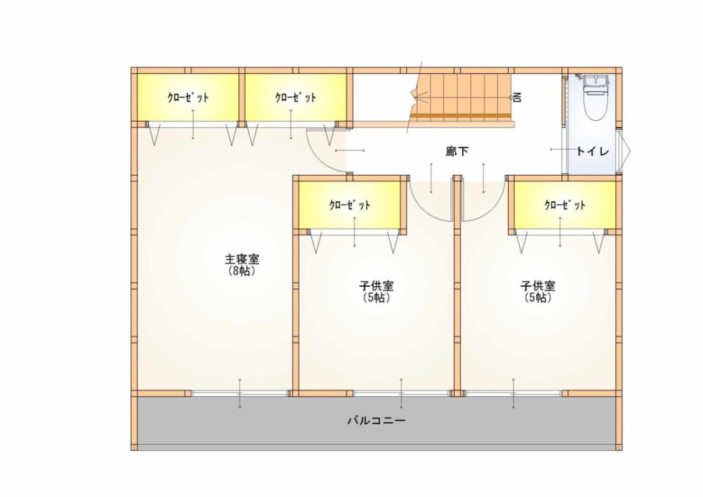
1F -
2F主寝室、洋室それぞれにクローゼット、トイレを設けたシンプルな構成です。
そしてどの部屋からも出入りできるバルコニーが共用できます。天気が良い日や穏やかな気候の時季は洗濯ものを干したり、ちょっと日向ぼっこもできます。
夏は花火が見えたり、綺麗な星空を見上げることが叶うかもしれません。
-
家族が自然と集まるリビングキッチンからリビング方向を見たパースです。
-
居心地の良い畳コーナーリビングの畳コーナーです。大きなソファを置かず畳にするとお子様が小さいうちはおむつ替えをしたり、おもちゃを広げて遊べます。
大人も畳に横になったり、簡単に移動できる一人がけの椅子で寛ぐこともできます。
2階へは行くのも2階から降りるのもわかるリビング階段は家族の気配が感じられます。
声をかけてもかけなくても(かけられなくても)様子がわかるほうがいいですよね。
階段下はおもちゃや本棚など収納スペースとして使うことができます。
-
解放感あふれる開口南面には大きな開口。
優しく光が入ってきます。 -
2階主寝室収納たっぷりで、洋服を沢山持っている奥様でも大丈夫です。
DATA
27.04坪
間取りプランのご質問もお気軽に!








